5 locali in vendita

Segrate, Settima strada - Milano San Felice
€ 550.000
5 locali 5 locali
175 Mq 175 Mq
3 bagni 3 bagni

5 locali in vendita

Segrate, Settima strada - Milano San Felice

Descrizione annuncio

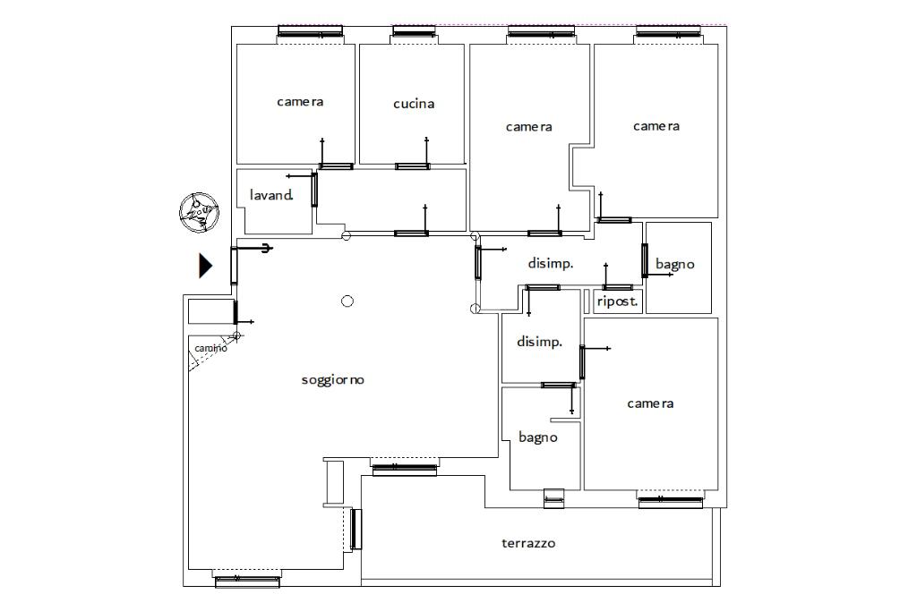
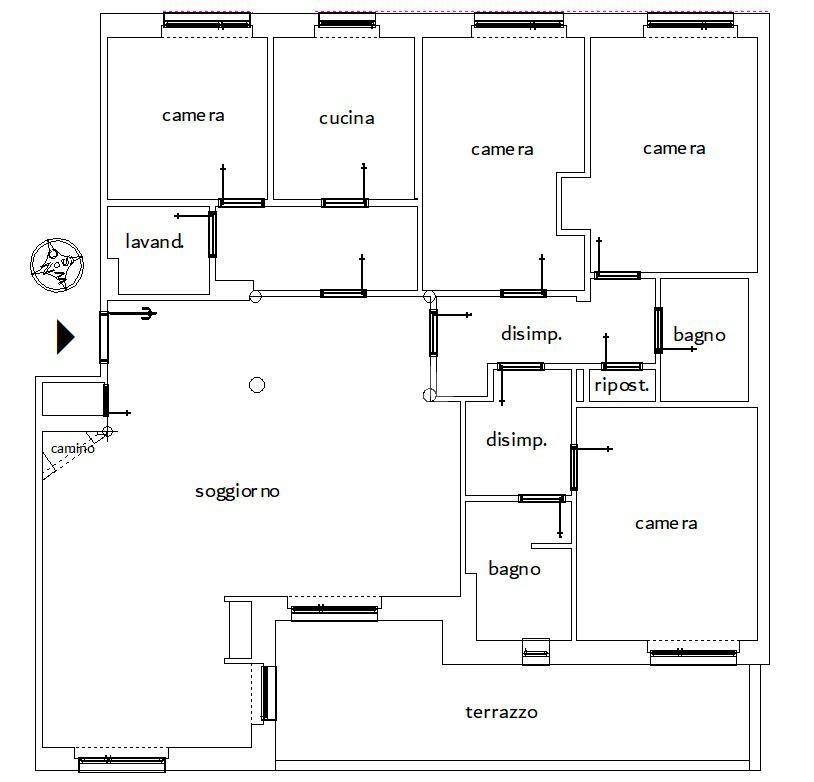
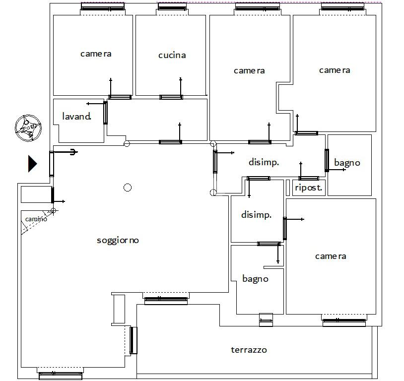
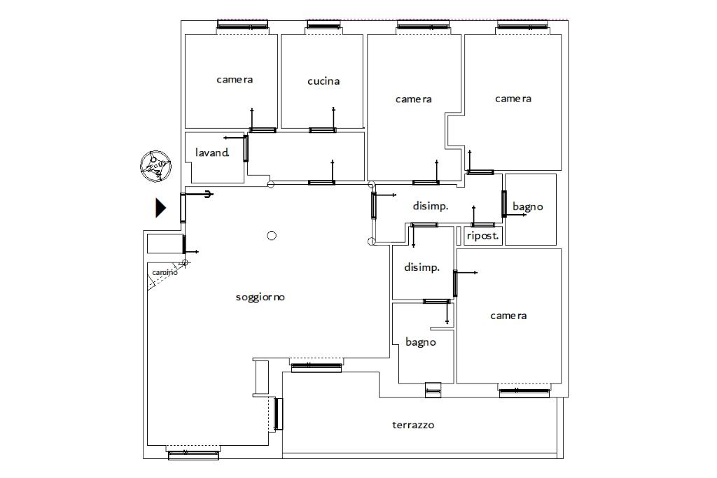
San Felice, Settima Strada - Appartamento di cinque locali, mq. 175 sito al piano primo di una piccola palazzina di soli due piani, in posizione ottimale per raggiungere comodamente a piedi e in pochi minuti i negozi offerti dalla Piazza Centro Commerciale. L'immobile presenta ampi spazi interni e ben distribuiti, dall'ingresso si accede al soggiorno doppio con camino e uscita sul terrazzo di mq. 21 e alla cucina abitabile separata, con adiacenti una camera e il bagno-lavanderia. La zona notte è divisa in due parti, la prima ospita la suite matrimoniale, con annesso il proprio bagno finestrato con vasca; nella seconda sono collocati le altre due camere, il bagno cieco con doccia e il ripostiglio. Dotato di pavimenti in parquet e aria condizonata nella zona giorno, infissi in pvc con doppi vetri, caloriferi nuovi con termovalvole e ripartitori, porta blindata. Annessa cantina, disponibile Box Doppio.

Possibilità di realizzazione di due appartamenti distinti e funzionalmente indipendenti ricavati da un'unica unità immobiliare, così suddivisi: un appartamento trilocale di superficie pari a circa 120 caratterizzato da ambienti ampi e razionalmente distribuiti, destinato a un'utenza residenziale medio-alta; un appartamento bilocale di superficie pari a circa 50 mq, progettato con particolare attenzione all'ottimizzazione degli spazi e alla massima fruibilità, ideale sia per l'utilizzo diretto sia per investimento a reddito.

Mostra tutto

Nelle vicinanze

Trasporto pubblico Trasporto pubblico
Pioltello-Limito
Pioltello-Limito
2,4 Km
stazione Migliavacca
stazione Migliavacca
2,5 Km
Piazza Centro Commerciale, 2 (San Felice)
Piazza Centro Commerciale, 2 (San Felice)
150 m
Portineria San Felice (San Felice)
Portineria San Felice (San Felice)
360 m
Segrate
Segrate
1,2 Km
Ricariche auto elettriche Ricariche auto elettriche
Eneldrive Poste San Felice
250 m
Enel Drive Polizia Municipale di Segrate
2,0 Km
ParkinGO LINATE
2,1 Km
Aeroporto di Milano Linate - P2
2,2 Km
Eneldrive Comune di Segrate
2,2 Km
Scuole Scuole
Liceo Scientifico Macchiavelli
750 m
Centro Universitario Sportivo Milano
1,0 Km
Scuola Secondaria Antichi Fontanili
1,6 Km
Scuola Primaria Antichi Fontanili
1,6 Km
Scuole
1,6 Km
Farmacia Farmacia
Parafarmacia San Felice
210 m
Farmacia
290 m
Farmacia San Riccardo
1,5 Km
Zucca
2,3 Km
Cuccia Lorenzo
2,9 Km
Supermercati Supermercati
Carrefour Market
190 m
UNES
1,5 Km
Sigma
2,1 Km
MD Discount
2,1 Km
Carrefour Express
2,3 Km
Negozi Negozi
Negozi
160 m
Calzature ciliegie
200 m
Yamamay
2,3 Km
Calzedonia
2,3 Km
Intimissimi
2,3 Km
Bar Bar
Punta dell'Est
990 m
Bar Il Truciolo
1,0 Km
Bar Tribune
1,3 Km
Fattoria da Zio Alfredo
1,4 Km
Papataso
1,5 Km
Ristoranti Ristoranti
Milano Icone
110 m
Pizza DOC San Felice
120 m
Emme & Emme Bakery & Food
140 m
I Girardelli - Ristorante con pizzeria
300 m
Ristorante Malaspina SC
390 m
Mostra tutto

Caratteristiche

Rif.:
60876499
Piano:
1 di 2 (Piano basso)
Box:
1
Terrazzi:
1
Camere da letto:
4
Arredamento:
Assente
Mostra tutto
Prezzo Prezzo
€ 550.000
Prezzo box Prezzo box
€ 70.000
Rata mutuo Rata mutuo
€ 2.611 / mese
Spese annue Spese annue
€ 6.960
Proponi il tuo prezzoProponi il tuo prezzo

Classe Energetica

E
E
E
E
E
E
E
E
E
EP globale non rinnovabile:
165.88 kW h/m² anno
EP globale rinnovabile:
5.31 kW h/m² anno
EP invernale del fabbricato:
EP estiva del fabbricato:
Anno di costruzione:
1970
Riscaldamento:
Centralizzato
Tipo impianto:
A radiatori
Tipo alimentazione:
Metano

Ti interessa visionare l'immobile?

Fissa un appuntamento  Fissa un appuntamento

Richiedi informazioni

Clicca su Leggi per aprire l'informativa
* Questi campi sono obbligatori

Calcola il tuo mutuo

Semplice e senza impegno
Anticipo

( % )
Mutuo

( % )

pochi semplici passi

inserisci i tuoi dati
Questionario completato
Grazie per aver richiesto un appuntamento senza impegno con un nostro Consulente del Credito e Assicurativo.

Hai inserito correttamente tutti i dati necessari e a breve riceverai una e-mail con un link da convalidare per inviare i tuoi dati.
Affiliato
Studio Milano San Felice Srl
P.zza Centro Commerciale , 101 20090 Segrate (MI)

Il nostro staff


  • Giovanni Solcia
    Affiliato

  • Federica De Santis
    Collaboratrice
P.zza Centro Commerciale , 101 20090 Segrate (MI)
Zona: Segrate San Felice
Mostra su mappa
Orari: dal lunedi al venerdi dalle 9.00 alle 13.00 e dalle 15.00 alle 19.00; sabato mattina dalle 9.00 alle 12.30.
Affiliato
Studio Milano San Felice Srl
P.zza Centro Commerciale , 101 20090 Segrate (MI)

2026 Tecnocasa Franchising S.p.A. - P. IVA 08365160152 - Via Monte Bianco 60/A 20089 Rozzano (MI). Ogni agenzia ha un proprio titolare ed è autonoma. Privacy policy | Policy utilizzo | Cookie policy